PROPERTY SEARCH
- Villa
- Property Type
- 7, 7
- Bedrooms
- 3, 3
- Bathrooms
- 241
- m²
Description
Ref: DP-18-9106
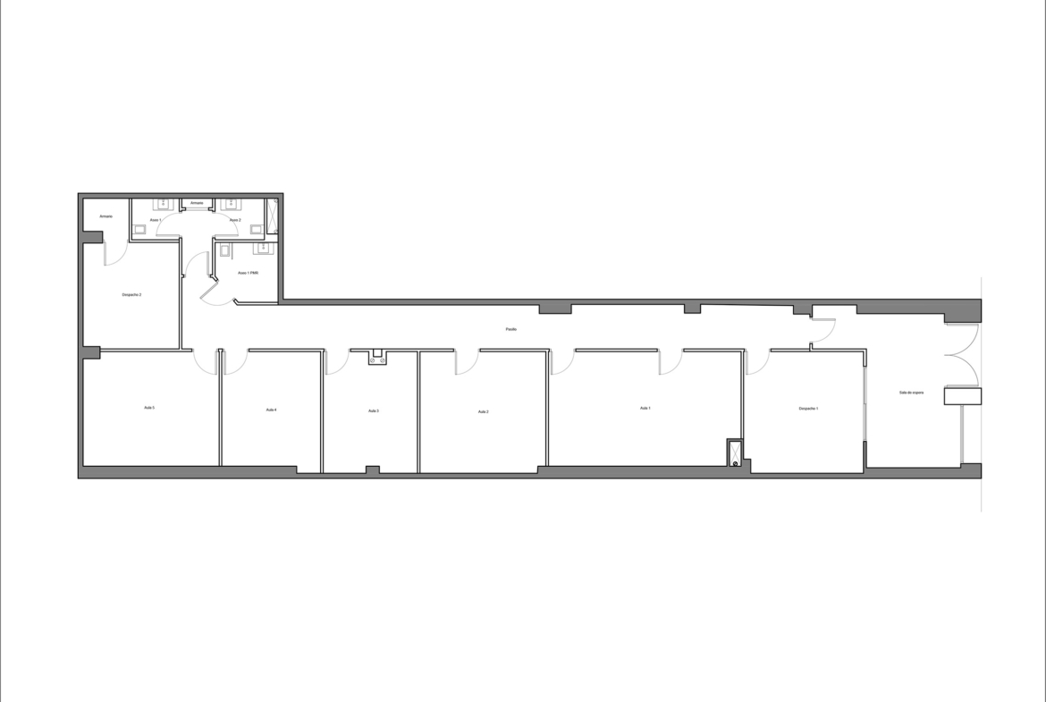
Situated in the neighbourhood of La Pechina, just a few metres from the Jardines del Turia and very close to the old town of Valencia, is this commercial property of 219 m² according to the land registry. The ground floor is situated at street level and is part of a building constructed in 1976.
The business premises have an activity licence for use as a study academy, for which it was completely refurbished in 2008 in order to make it suitable for this use. In this renovation process, spaces adapted for people with reduced mobility were created, ducted air conditioning was installed and all classrooms were soundproofed, which is extremely important for this activity. The ground floor also has a video surveillance system, smooth walls, solid doors and an audio system to interconnect all the classrooms with the reception and offices, making it possible to sectorise the spaces in which a message is heard.
The commercial ground floor is distributed in a reception, two offices, three classrooms of different sizes, a computer room and three toilets, one of them adapted for people with reduced mobility. In addition to its condition, fully adapted for use as a study academy, one of its main attractions is its location; in a very familiar neighbourhood, surrounded by numerous schools and with excellent communications.
If you are interested in buying commercial property in Extramurs, Dream Properties offers you the opportunity to visit a property that has been completely refurbished and adapted for use as a study academy.
Dream Properties Valencia is a certified real estate agent, more information via this link. We have helped many customers over the years in Valencia City and the surrounding area, check our reviews here.
Details
-
Ref: DP-18-9106
-
Price: €375,000
-
Build Size: 241 m²
-
Bedrooms: 7
-
Bathrooms: 3
-
Type: Villa
Approximate Location
Maps are for representative purposes only and do not provide an exact location. They indicate the nearest town to which the property is located. For full details, please enquire using the form provided.
Similar Listings
Similar Listings
- Dream Properties
Contact me




















